ID 02687
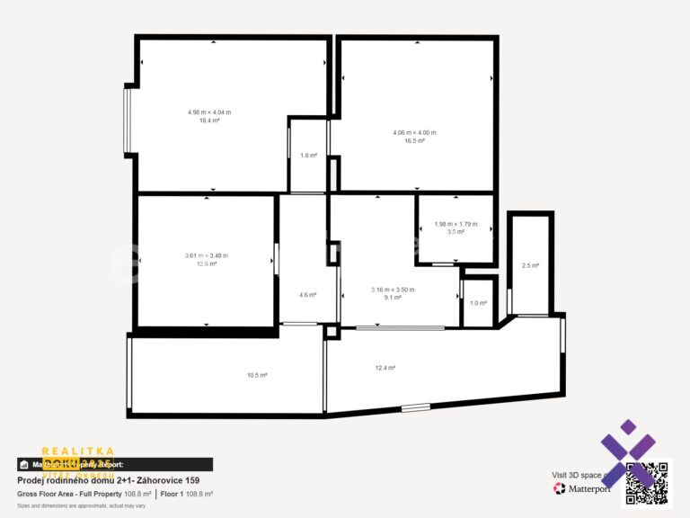
Ing. Martin Souček & Explicit Reality Vám nabízí k prodeji rodinný dům s praktickým dispozičním řešením 2+1 s celkovou plochou 93 m² a se zahradou o výměře 1196 m².
Vstup do domu je přes průjezdová vrata, která vedou do prostorné chodby umožňující vstup do domu i na dvorek, za nímž se rozkládá zahrada o celkové ploše 1 196 m². Z této chodby je také přístup do technické místnosti.
Po levé straně chodby se nachází vstup do hlavní části domu. Po vstupu do domu je po levé straně místnost, která byla dosud využívána jako kuchyně.
Naproti ní je část domu samostatně uspořádaná a slouží jako sanitární a skladovací zóna, je zde samostatná toaleta, koupelna vybavená vanou a bojlerem a vedle ní menší místnost vhodná například jako špajz nebo sklad.
Dále dům nabízí dvě prostorné místnosti, které mohou sloužit jako obývací pokoj a ložnice, případně dětský pokoj.
Dům je určen ke kompletní rekonstrukci a není vybavený, takže si nový majitel může vytvořit interiér zcela podle svých představ.
Obec Záhorovice se nachází v podhůří Bílých Karpat a nabízí kompletní občanskou vybavenost – MHD, obchody a potraviny, základní školu, poštu, knihovnu, vlakové nádraží i dětská hřiště. Lokalita je ideální pro ty, kteří hledají klidné bydlení v blízkosti přírody s možností vlastní rekonstrukce domu.
Pomocí našeho 3D scanu si můžete nemovitost projít již nyní.
Zaujala vás tato nabídka? Neváhejte mě kontaktovat pro více informací a domluvu osobní prohlídky.
Ing. Martin Souček, realitní makléř Explicit Reality





























































